Just Listed

COASTAL LAND, BAY VIEWS & KIT HOME!

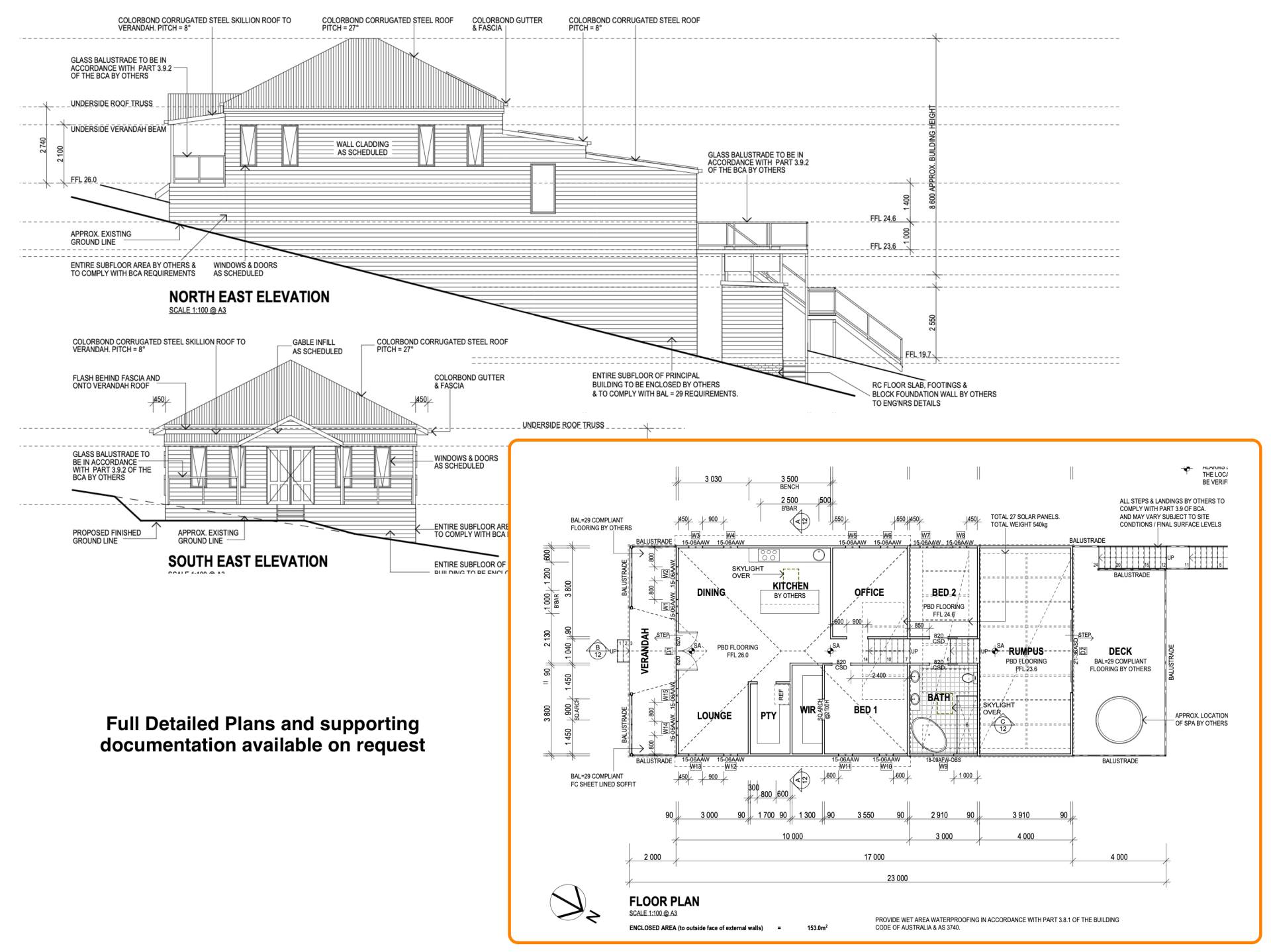
This property offers an amazing opportunity to complete a 2 bedroom plus study kit home in this idillic coastal location at a fraction of the time and cost of starting from scratch!  The DA approved and partially constructed steel framed kit home comes with full instructions and extensive additional materials included to get the home ready for fit out.  Colourbond roofing, roof trusses, wall framing, insulation, flooring and even the site security fencing is included.  Approval also exists for a detached garage.  Go Owner Builder or enlist tradies to help.  With materials ready to go and a frame already taking shape the build can progress quickly from this stage.

Set on a North facing fully serviced 750m2 block with filtered Twofold Bay views in area that is rich in history and unrivalled beauty.  You will love living just a short stroll from the pristine waters of Boydtown Beach, a 3km stretch of sand that's the perfect setting for all your leisure activities.  The historic Seahorse Inn is a nearby (approx 900m) hotel where the beer is always cold and dinner is waiting on those lazy evenings.  This property is an easy drive of less than 10km from the township of Eden with the convenience all town amenities including schools and supermarkets.

Call Adam today for all the details including DA approved plans, site plans and a full list of materials that come with this sale.

2 1 750 m2
Address 17 Cornubia Pl, Boydtown
Price $580,000
Property Type Residential
Property ID 566
Category House
Land Area 750 m2

Agent Details

Adam Donaldson photo

Adam Donaldson

0409 226 002
View Profile